Codice V000161 - Villetta in Costruzione con Terreno di Pertinenza e Piscina
    Proponiamo in vendita un lotto di terreno di circa 1200 m² in zona Grotticelli, zona Scopello, sul quale verrà realizzata una villetta allo stato grezzo, consegnata con la struttura secondo progetto.
    Si vende il lotto con la struttura in cemento armato completo di tompagnamenti. Le finiture e il completamento dell’immobile saranno interamente a cura e spese della parte acquirente.
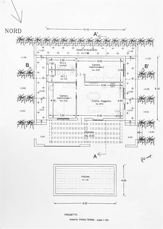
    La villetta, ad un’unica elevazione fuori terra, avrà una superficie di circa 80 m² e sarà composta da:
    • Cucina
    • Soggiorno
    • Due camere matrimoniali
    • Due servizi igienici
    • Pergolato esterno
    • Piscina privata
    Il progetto prevede ambienti funzionali, luminosi e ben distribuiti, con ampi spazi esterni ideali per vivere in tranquillità e comfort.
    Si vende il lotto di terreno con la struttura allo stato grezzo che verrà realizzata prima della consegna.
    Soluzione perfetta per chi desidera una casa indipendente personalizzabile nelle finiture, in un contesto riservato e con ampi spazi verdi.
    Nota: Le immagini fotorealistiche sono indicative e hanno il solo scopo di mostrare una possibile resa finale della struttura.
    • Prezzo
      195.000 EUR
    • Metri quadri
      80
    • Classe
      VA
    • Locali
      4
    • Mq Giardino
      1200
    • Stato Immobile
      In Costruzione
    • Grado
      Signorile
    • Lati Liberi
      4
    • Giardino
      Privato
    • grotticelli , Castellammare del Golfo (TP)